About
Process
Home
Work
Contact
Farmhouses
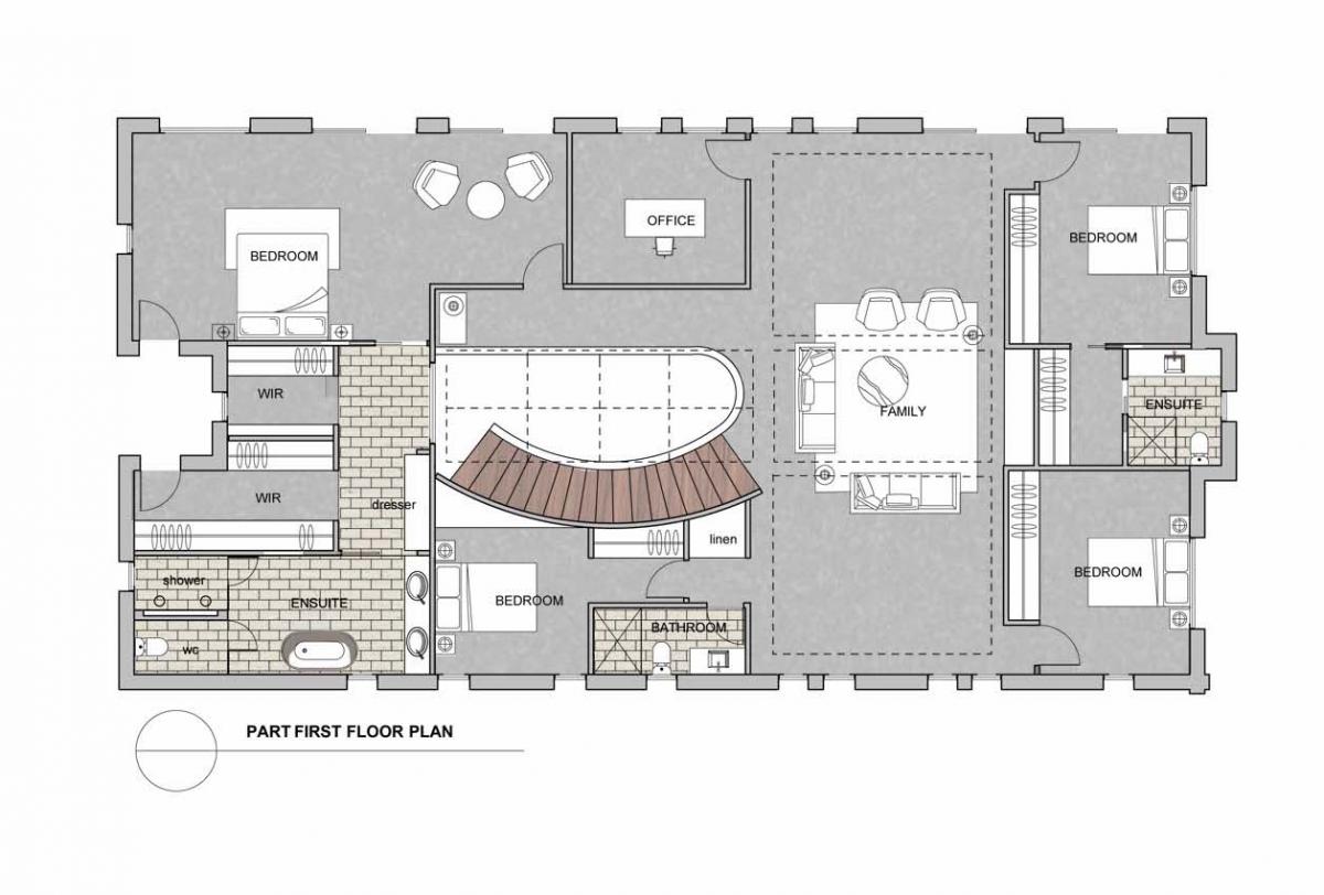
TERRANORA MANOR
VIEW ALL
Urban Design
Detailed Urban Design
Masterplans & Subdivisions
Covenants & Architectural Codes
Resorts & Town Centres
Residential
Luxury Bespoke Homes
Duplex and Townhomes
Towers & Apartments
Affordable & Mining Town
Renovations
Farmhouses
Commercial
Factories
Shops
Villages
Marinas
Filters
Overview
SHARE THIS PROJECT
Facebook
Twitter
Pinterest
Related Projects
CLERMONT HOMESTEAD
Residential
RAPALLO AVE
Residential
QUARTERDECK
Commercial
Browse Projects